Un appartement de 65m2 avec une terrasse XXL en plein cœur de Lisbonne
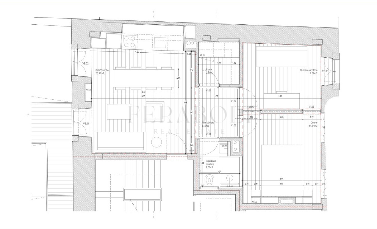
À Lisbonne, dans le quartier traditionnel de Lapa, cet appartement de 65m2 avec une terrasse XXL possède un intérieur épuré et chaleureux. Il brille par son équilibre entre charme ancien et confort contemporain. Installé dans un immeuble de 1886 entièrement rénové par SIA Arquitectura, il a tout du lieu charmant et urbain. Dès l’entrée, la lumière s’invite dans le grand salon ouvert sur une cuisine moderne. Le sol en bois clair et les murs crème créent une atmosphère douce et minimaliste.
La suite principale joue la carte du sur-mesure avec des panneaux en bois exotique et un balcon. La seconde chambre, plus discrète, profite elle aussi d’une belle lumière naturelle. La salle de bain en marbre et le dressing viennent parfaire cet ensemble pensé dans les moindres détails. "Cerise sur le pastel" le clou du spectacle reste la terrasse de 70m2, un espace rare en ville, parfait pour les déjeuners sous le soleil ou les soirées à la belle étoile. Photo : Angeline Terestchenko pour Feraboli Real Estate
In Lisbon, in the traditional neighbourhood of Lapa, this 65m2 apartment with an XXL terrace has a sleek and cosy interior. It stands out for its balance between old-world charm and contemporary comfort. Located in a building dating from 1886 and completely renovated by SIA Arquitectura, it has all the charm and urban appeal you could wish for. As soon as you enter, light floods into the large living room, which opens onto a modern kitchen. The light wood flooring and cream walls create a soft, minimalist atmosphere.
The master suite is tailor-made, with exotic wood panelling and a balcony. A second bedroom, which is more discreet, also enjoys beautiful natural light. The marble bathroom and walk-in wardrobe complete this meticulously designed space. The icing on the cake is the 70m2 terrace, a rare find in the city, perfect for lunches in the sun or evenings under the stars. Photo: Angeline Terestchenko for Feraboli Real Estate
Cet appartement de 65m2 avec une terrasse à Lisbonne au Portugal a été vendu sur ce site
This 65m2 apartment with a terrace in Lisbon, Portugal was sold on this site








La suite principale joue la carte du sur-mesure avec des panneaux en bois exotique et un balcon. La seconde chambre, plus discrète, profite elle aussi d’une belle lumière naturelle. La salle de bain en marbre et le dressing viennent parfaire cet ensemble pensé dans les moindres détails. "Cerise sur le pastel" le clou du spectacle reste la terrasse de 70m2, un espace rare en ville, parfait pour les déjeuners sous le soleil ou les soirées à la belle étoile. Photo : Angeline Terestchenko pour Feraboli Real Estate
A 65m2 flat with an XXL terrace in the heart of Lisbon
In Lisbon, in the traditional neighbourhood of Lapa, this 65m2 apartment with an XXL terrace has a sleek and cosy interior. It stands out for its balance between old-world charm and contemporary comfort. Located in a building dating from 1886 and completely renovated by SIA Arquitectura, it has all the charm and urban appeal you could wish for. As soon as you enter, light floods into the large living room, which opens onto a modern kitchen. The light wood flooring and cream walls create a soft, minimalist atmosphere.
The master suite is tailor-made, with exotic wood panelling and a balcony. A second bedroom, which is more discreet, also enjoys beautiful natural light. The marble bathroom and walk-in wardrobe complete this meticulously designed space. The icing on the cake is the 70m2 terrace, a rare find in the city, perfect for lunches in the sun or evenings under the stars. Photo: Angeline Terestchenko for Feraboli Real Estate
Cet appartement de 65m2 avec une terrasse à Lisbonne au Portugal a été vendu sur ce site
This 65m2 apartment with a terrace in Lisbon, Portugal was sold on this site
Shop the look !




Livres




















Commentaires