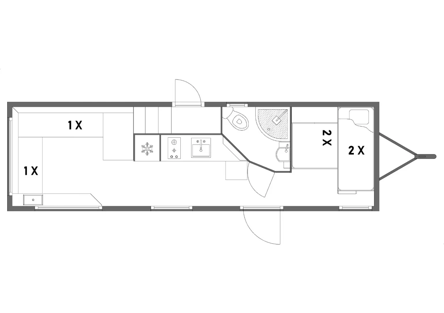
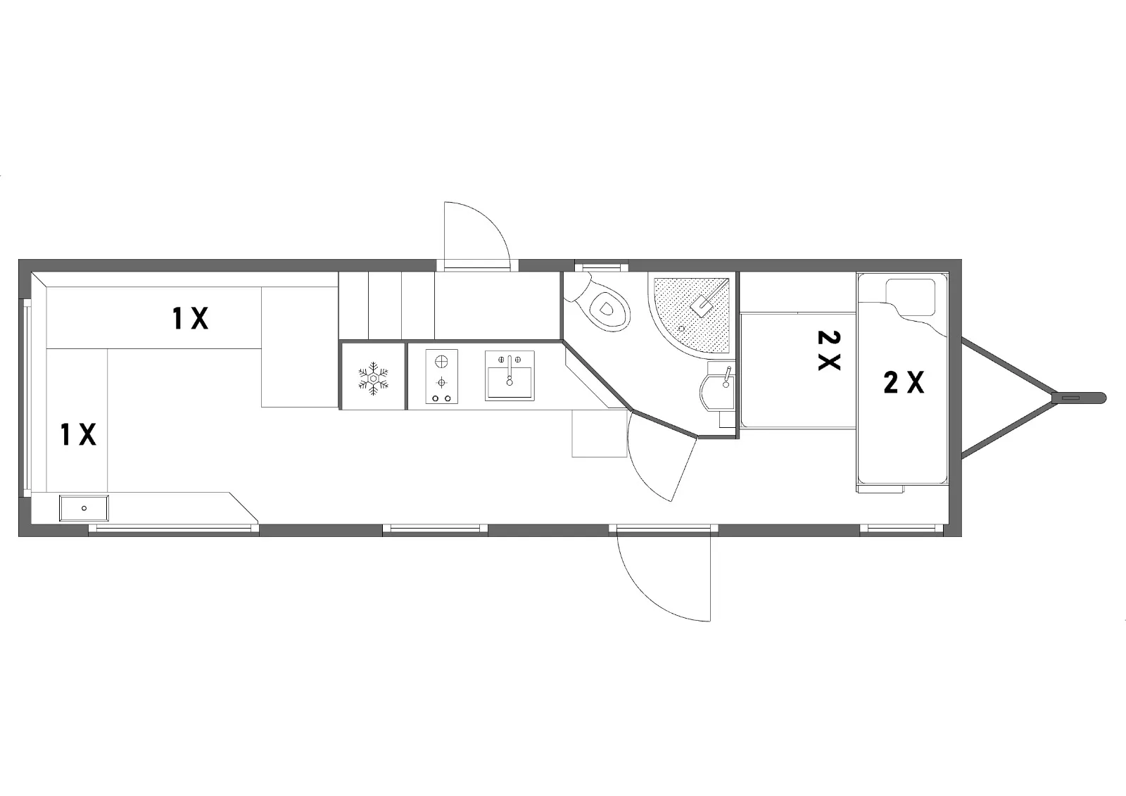
La tiny house française ODDA de 30m2 pensée pour les familles
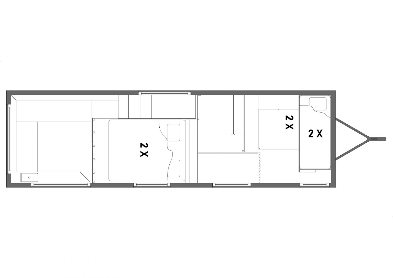
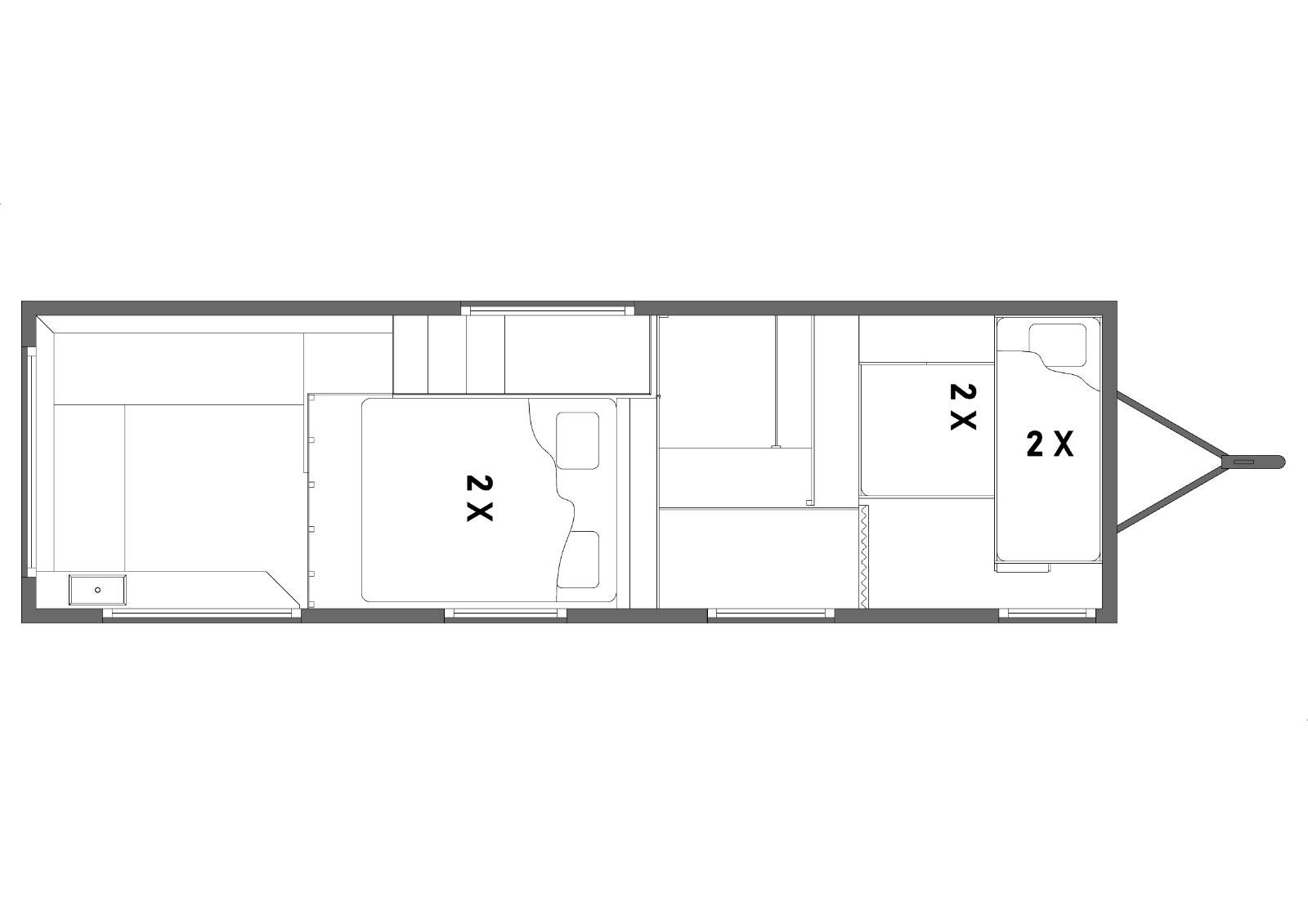
Vivre en tiny house avec enfants semblait irréaliste, jusqu’à l’arrivée de ce modèle ingénieux. On associe souvent les tiny houses à une vie de couple, surtout si c'est de façon permanente. Pourtant la tiny house française ODDA de 30m2 change clairement la perspective. Avec sa surface optimisée, cette petite maison mobile accueille confortablement les parents, les enfants et même les invités occasionnels. Sa silhouette au toit pentu abrite une mezzanine parentale spacieuse et un rez-de-chaussée exploité intelligemment. Le mélange bois thermo-traité et métal offre une esthétique actuelle, durable et adaptée aux usages quotidiens.
Pensée comme une résidence permanente, ODDA intègre des rangements, et des équipements complets. La circulation y est fluide. Le séjour lumineux dispose d’un canapé modulable généreux, parfait pour partager moments familiaux et soirées détendues. Une cloison partielle masque l’escalier, dont chaque marche intègre des rangements discrets et pratiques. En mezzanine, la chambre parentale surprend par son confort, sa luminosité et ses solutions de stockage intégrées. Les enfants profitent d’une vraie chambre indépendante, compacte, lumineuse et facile à vivre au quotidien. Cuisine fonctionnelle, salle de bain complète et mobilier inclus rendent ODDA immédiatement habitable sans compromis. Disponible également en version agrandie, cette tiny house française s’impose comme un solution familiale abordable. Pour retrouver toutes les informations et le prix de cette tiny house française ODDA de 30m2 chez son fabricant Moxx House France, cliquez sur ce lien !
Living in a tiny house with children seemed unrealistic until this ingenious model came along. Tiny houses are often associated with couples, especially if they are permanent homes. However, the 30m2 French ODDA tiny house clearly changes that perspective. With its optimised surface area, this small mobile home comfortably accommodates parents, children and even occasional guests. Its sloping roof shelters a spacious master bedroom mezzanine and a cleverly designed ground floor. The combination of heat-treated wood and metal offers a contemporary, durable aesthetic that is suitable for everyday use.
Designed as a permanent residence, ODDA includes storage space and all the necessary amenities. The layout is fluid. The bright living room features a generous modular sofa, perfect for sharing family moments and relaxing evenings. A partial partition conceals the staircase, each step of which incorporates discreet and practical storage space. On the mezzanine level, the master bedroom surprises with its comfort, brightness and integrated storage solutions. Children enjoy a real independent bedroom that is compact, bright and easy to live in on a daily basis. A functional kitchen, full bathroom and furniture included make ODDA immediately habitable without compromise. Also available in an enlarged version, this French tiny house is an affordable solution for families. To find all the information and prices for this 30m2 French tiny house ODDA from its manufacturer Moxx House France, click on this link!




Pensée comme une résidence permanente, ODDA intègre des rangements, et des équipements complets. La circulation y est fluide. Le séjour lumineux dispose d’un canapé modulable généreux, parfait pour partager moments familiaux et soirées détendues. Une cloison partielle masque l’escalier, dont chaque marche intègre des rangements discrets et pratiques. En mezzanine, la chambre parentale surprend par son confort, sa luminosité et ses solutions de stockage intégrées. Les enfants profitent d’une vraie chambre indépendante, compacte, lumineuse et facile à vivre au quotidien. Cuisine fonctionnelle, salle de bain complète et mobilier inclus rendent ODDA immédiatement habitable sans compromis. Disponible également en version agrandie, cette tiny house française s’impose comme un solution familiale abordable. Pour retrouver toutes les informations et le prix de cette tiny house française ODDA de 30m2 chez son fabricant Moxx House France, cliquez sur ce lien !
The 30m2 French ODDA tiny house designed for families
Living in a tiny house with children seemed unrealistic until this ingenious model came along. Tiny houses are often associated with couples, especially if they are permanent homes. However, the 30m2 French ODDA tiny house clearly changes that perspective. With its optimised surface area, this small mobile home comfortably accommodates parents, children and even occasional guests. Its sloping roof shelters a spacious master bedroom mezzanine and a cleverly designed ground floor. The combination of heat-treated wood and metal offers a contemporary, durable aesthetic that is suitable for everyday use.
Designed as a permanent residence, ODDA includes storage space and all the necessary amenities. The layout is fluid. The bright living room features a generous modular sofa, perfect for sharing family moments and relaxing evenings. A partial partition conceals the staircase, each step of which incorporates discreet and practical storage space. On the mezzanine level, the master bedroom surprises with its comfort, brightness and integrated storage solutions. Children enjoy a real independent bedroom that is compact, bright and easy to live in on a daily basis. A functional kitchen, full bathroom and furniture included make ODDA immediately habitable without compromise. Also available in an enlarged version, this French tiny house is an affordable solution for families. To find all the information and prices for this 30m2 French tiny house ODDA from its manufacturer Moxx House France, click on this link!
Livres





























Commentaires