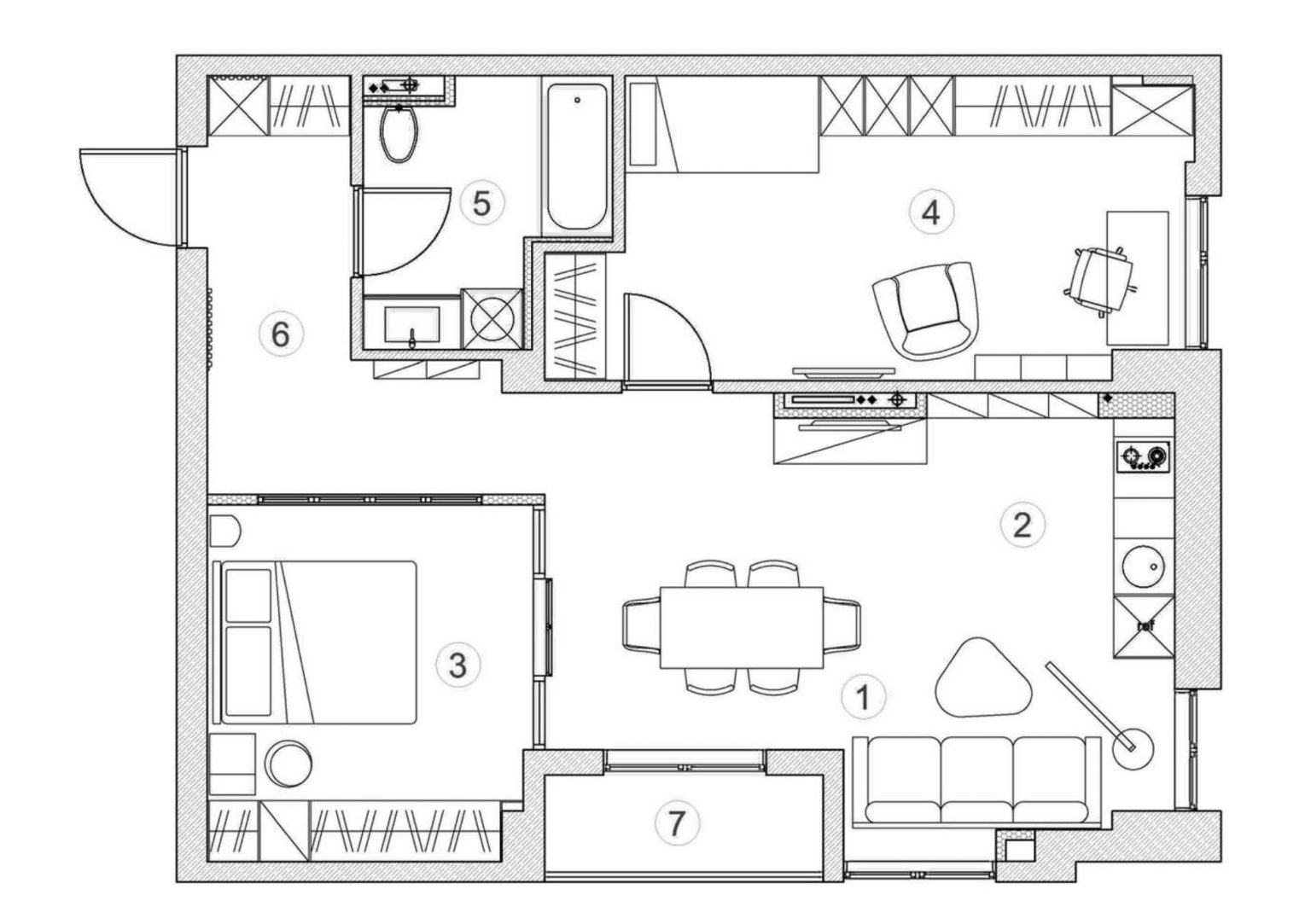
Créer une chambre supplémentaire dans un appartement de 70m2 grâce à une cloison en verre
Dans cet appartement de 70m2 situé à Almaty au Kazakhstan, un logement neuf, une jeune mère a emménagé avec son fils de 7 ans. Le plan initial du promoteur proposait une seule chambre et seulement deux fenêtres bien orientées dans le salon. Il fallait donc imaginer une solution astucieuse sans priver l’espace de lumière naturelle pour installer la chambre supplémentaire nécessaire. La designer Anna Aranovich a proposé une cloison en verre attenante à la salle à manger. Cette structure a permis de créer une vraie pièce tout en conservant une sensation d’ouverture.
La chambre existante a été attribuée au garçon, plus spacieuse et parfaitement adaptée à son quotidien. La chambre supplémentaire, pensée pour la mère, a adopté une palette menthe très douce. Les lignes sobres, les touches métalliques et les textiles clairs dialoguent avec une fresque florale peinte à la main créée par un artiste de la région. Les sols stratifiés et la peinture unifient l’ensemble. La cuisine et la salle de bain ont pu rester à leur place initiale, optimisant ainsi le budget sans perdre en confort.
In this 70m2 apartment located in Almaty, Kazakhstan, a young mother moved in with her 7-year-old son. The developer's initial plan offered only one bedroom and two well-oriented windows in the living room. It was therefore necessary to come up with a clever solution that would not deprive the space of natural light in order to install the additional bedroom that was needed. Designer Anna Aranovich proposed a glass partition adjoining the dining room. This structure made it possible to create a real room while maintaining a feeling of openness.
The existing bedroom was given to the boy, as it was more spacious and perfectly suited to his daily life. This additional bedroom, designed for the mother, features a very soft mint colour palette. The simple lines, metallic accents and light-coloured textiles complement a hand-painted floral fresco created by a local artist. Laminate flooring and paint unify the whole space. The kitchen and bathroom were able to remain in their original locations, optimising the budget without compromising on comfort.

![[en.casa] Table de Salle à Manger avec Plateau Rectangulaire Table à Manger Élégante pour Salon Cuisine Bureau MDF Acier 140 x 80 x 75 cm Gris Effet Chêne Noir](https://shop.planete-deco.fr/cdn/shop/files/51k26p43FcL_96169305-7941-4a22-a453-3e5a175efd79_720x.jpg?v=1767077825)






La chambre existante a été attribuée au garçon, plus spacieuse et parfaitement adaptée à son quotidien. La chambre supplémentaire, pensée pour la mère, a adopté une palette menthe très douce. Les lignes sobres, les touches métalliques et les textiles clairs dialoguent avec une fresque florale peinte à la main créée par un artiste de la région. Les sols stratifiés et la peinture unifient l’ensemble. La cuisine et la salle de bain ont pu rester à leur place initiale, optimisant ainsi le budget sans perdre en confort.
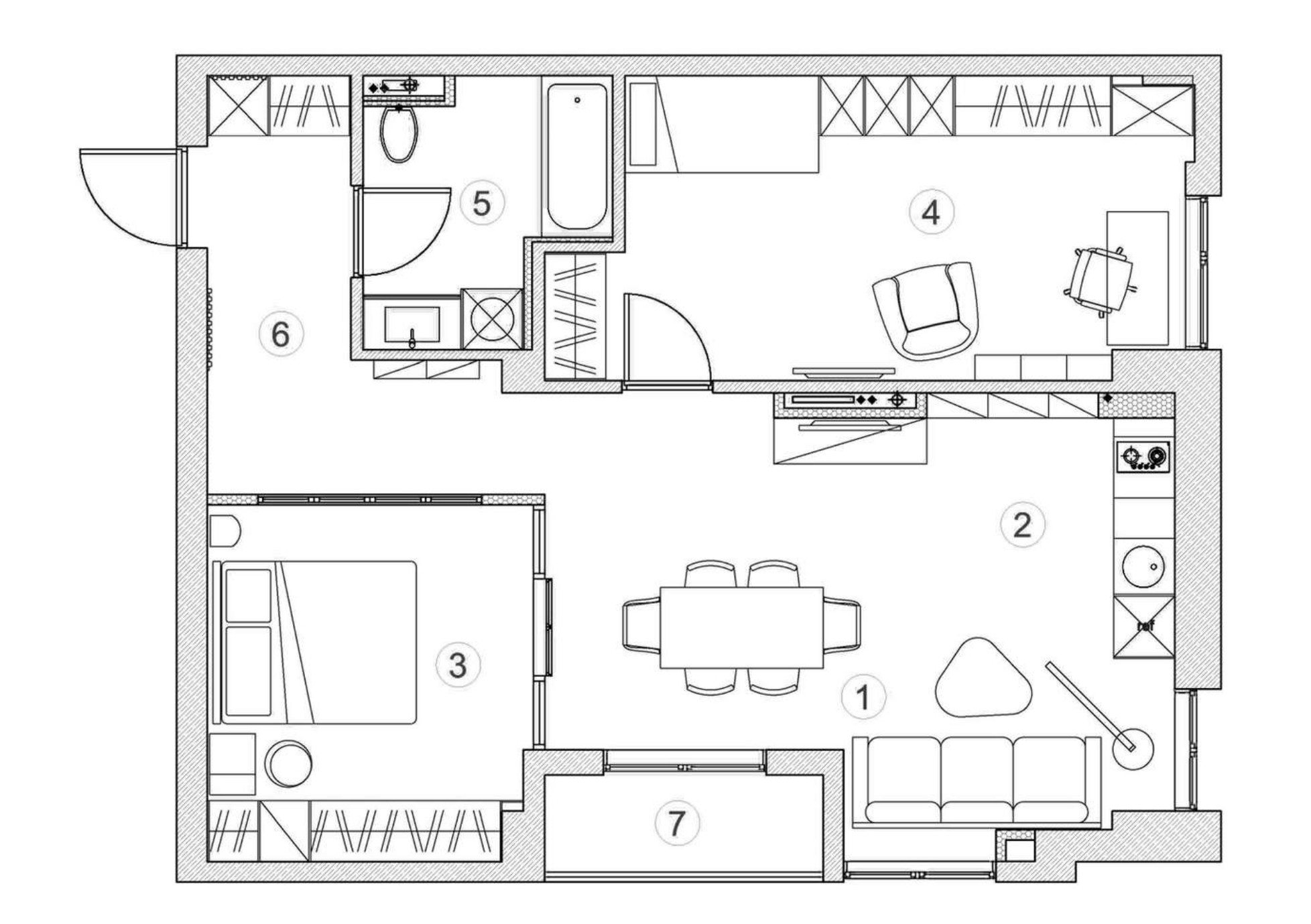
Creating an extra bedroom in a 70m2 apartment using a glass partition
In this 70m2 apartment located in Almaty, Kazakhstan, a young mother moved in with her 7-year-old son. The developer's initial plan offered only one bedroom and two well-oriented windows in the living room. It was therefore necessary to come up with a clever solution that would not deprive the space of natural light in order to install the additional bedroom that was needed. Designer Anna Aranovich proposed a glass partition adjoining the dining room. This structure made it possible to create a real room while maintaining a feeling of openness.
The existing bedroom was given to the boy, as it was more spacious and perfectly suited to his daily life. This additional bedroom, designed for the mother, features a very soft mint colour palette. The simple lines, metallic accents and light-coloured textiles complement a hand-painted floral fresco created by a local artist. Laminate flooring and paint unify the whole space. The kitchen and bathroom were able to remain in their original locations, optimising the budget without compromising on comfort.
Shop the look !

![[en.casa] Table de Salle à Manger avec Plateau Rectangulaire Table à Manger Élégante pour Salon Cuisine Bureau MDF Acier 140 x 80 x 75 cm Gris Effet Chêne Noir](https://shop.planete-deco.fr/cdn/shop/files/51k26p43FcL_96169305-7941-4a22-a453-3e5a175efd79_720x.jpg?v=1767077825)


Livres




























Commentaires