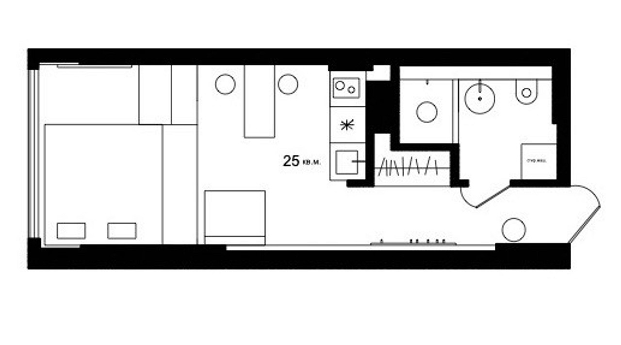
Un studio de 25m2 à louer avec un lit sur podium et des rangements intégrés
Dans ce studio de 25m2 à louer, chaque choix est totalement réfléchi pour son usage et son originalité. Inspiré par les micro-logements des grandes métropoles asiatiques, ce studio de location pour les touristes assume un parti pris radical. Le projet est signé par le designer Yuriy Lutsenko, également propriétaire des lieux, et il est situé en étage élevé face à une rivière. L’appartement se compose d’une pièce principale avec cuisine, d’une salle de bain et d’une loggia dont les portes coulissantes ont été retirées. Cela a permis d’agrandir la surface disponible. Cette transformation a libéré l’espace nécessaire à l’installation d’un lit confortable sur un podium central. L’objectif était clair, séduire les voyageurs tout en garantissant une excellente résistance face à un usage régulier et intensif.
Le sol reprend un revêtement habituellement réservé aux espaces publics, robuste et facile d’entretien. Un des murs a conservé son béton apparent, simplement protégé par un vernis discret. Le cœur du projet de ce studio de 25m2 à louer reste le podium, qui attire immédiatement l’œil dès l’entrée. Il supporte le matelas et intègre de nombreux tiroirs, optimisant chaque centimètre disponible. La zone nuit prend la forme d’un cube, habillé de contreplaqué verni pour murs et plafond. Ce choix crée une sensation enveloppante tout en restant graphique et lisible. La cuisine se distingue par sa couleur terracotta dynamique. À la place d’une table classique, un bar escamotable libère l’espace lorsqu’il n’est pas utilisé. L’éclairage devient un véritable élément décoratif, avec un néon près du bar. Dans la salle de bain, des lumières colorées modifient l’ambiance selon les moments. Photo: Irina Kablukova
In this 25m2 studio flat for rent, every choice has been carefully considered for its practicality and originality. Inspired by micro-housing in major Asian cities, this studio flat for tourists takes a radical approach. The project is the work of designer Yuriy Lutsenko, who also owns the property, and is located on a high floor overlooking a river. The apartment consists of a main room with a kitchen, a bathroom and a loggia with sliding doors that have been removed. This has increased the available space. This transformation has freed up the space needed to install a comfortable bed on a central platform. The objective was clear: to appeal to travellers while ensuring excellent resistance to regular and intensive use.
The floor features a robust and easy-to-maintain covering usually reserved for public spaces. One of the walls has retained its exposed concrete, simply protected by a discreet varnish. The centrepiece of this 25m2 studio rental is the platform, which immediately catches the eye upon entering. It supports the mattress and incorporates numerous drawers, optimising every available centimetre. The sleeping area takes the form of a cube, clad in varnished plywood for the walls and ceiling. This choice creates an enveloping feeling while remaining graphic and legible. The kitchen stands out with its vibrant terracotta colour. Instead of a traditional table, a retractable bar frees up space when not in use. Lighting becomes a decorative element in its own right, with a neon light near the bar. In the bathroom, coloured lights change the atmosphere depending on the time of day. Photo: Irina Kablukova
Source : My Decor








Le sol reprend un revêtement habituellement réservé aux espaces publics, robuste et facile d’entretien. Un des murs a conservé son béton apparent, simplement protégé par un vernis discret. Le cœur du projet de ce studio de 25m2 à louer reste le podium, qui attire immédiatement l’œil dès l’entrée. Il supporte le matelas et intègre de nombreux tiroirs, optimisant chaque centimètre disponible. La zone nuit prend la forme d’un cube, habillé de contreplaqué verni pour murs et plafond. Ce choix crée une sensation enveloppante tout en restant graphique et lisible. La cuisine se distingue par sa couleur terracotta dynamique. À la place d’une table classique, un bar escamotable libère l’espace lorsqu’il n’est pas utilisé. L’éclairage devient un véritable élément décoratif, avec un néon près du bar. Dans la salle de bain, des lumières colorées modifient l’ambiance selon les moments. Photo: Irina Kablukova
A 25m2 studio flat for rent with a raised bed and built-in storage
In this 25m2 studio flat for rent, every choice has been carefully considered for its practicality and originality. Inspired by micro-housing in major Asian cities, this studio flat for tourists takes a radical approach. The project is the work of designer Yuriy Lutsenko, who also owns the property, and is located on a high floor overlooking a river. The apartment consists of a main room with a kitchen, a bathroom and a loggia with sliding doors that have been removed. This has increased the available space. This transformation has freed up the space needed to install a comfortable bed on a central platform. The objective was clear: to appeal to travellers while ensuring excellent resistance to regular and intensive use.
The floor features a robust and easy-to-maintain covering usually reserved for public spaces. One of the walls has retained its exposed concrete, simply protected by a discreet varnish. The centrepiece of this 25m2 studio rental is the platform, which immediately catches the eye upon entering. It supports the mattress and incorporates numerous drawers, optimising every available centimetre. The sleeping area takes the form of a cube, clad in varnished plywood for the walls and ceiling. This choice creates an enveloping feeling while remaining graphic and legible. The kitchen stands out with its vibrant terracotta colour. Instead of a traditional table, a retractable bar frees up space when not in use. Lighting becomes a decorative element in its own right, with a neon light near the bar. In the bathroom, coloured lights change the atmosphere depending on the time of day. Photo: Irina Kablukova
Source : My Decor
Shop the look !




Livres

























Commentaires