Une mini maison préfabriquée Amazon de 37m2 pliable et très abordable
Installer une petite maison chez soi devient plus simple grâce à cette mini-maison préfabriquée Amazon de 37m2. Accessible, modulable et livrée clé en main, elle se déplie en quelques instants et est habitable immédiatement. Et cerise sur le gâteau, son prix est très abordable, de moins de 12.000€ !
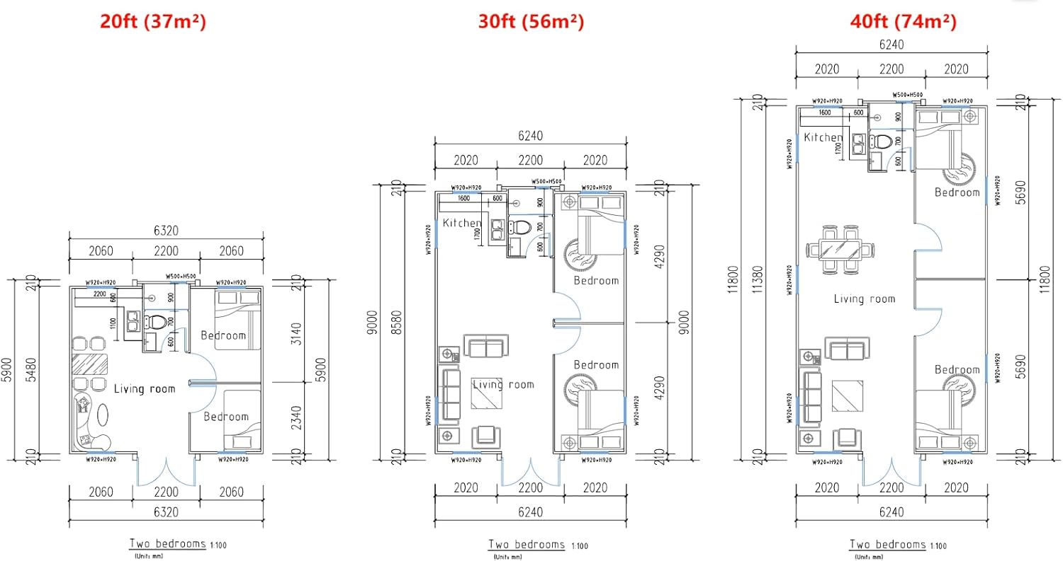
Vous cherchez une petite maison à installer dans votre jardin ou sur un terrain diffus? Cette mini-maison préfabriquée séduit par son prix pour le modèle de base. Il propose 37m2 habitables et totalement équipés. La structure en acier assure une bonne durabilité et une résistance fiable. Les matériaux choisis protègent efficacement des intempéries. La maison arrive prête à l’emploi dès la livraison. Son format pliable facilite le transport et le montage. Une fois déployée, elle comprend une cuisine équipée et une salle de bain fonctionnelle. Cette solution convient parfaitement pour une annexe indépendante, un bureau ou une maison d’amis.
Cette mini-maison peut évoluer selon vos besoins et votre terrain. Elle est disponible en trois dimensions, jusqu’à 74m2. L’agencement intérieur reste personnalisable selon vos envies. Le plan intègre deux chambres, une cuisine ouverte et un salon bien proportionné. Les fenêtres et la porte vitrée apportent une belle luminosité naturelle. Des baies vitrées peuvent être ajoutées en option. L’isolation poussée améliore le confort thermique et acoustique.
Plusieurs options permettent d’adapter cette maison à votre projet. Un porche arrière ou un patio couvert peuvent être ajoutés. Le revêtement extérieur se décline en plusieurs couleurs, avec des finitions imitation bois possibles. Les sols et les peintures intérieures sont également personnalisables. Cette flexibilité rend chaque maison unique mais également en accord avec les règlementations locales.
Livrée directement sur votre terrain, cette mini-maison combine rapidité d’installation et simplicité d’achat en ligne. Une solution pratique à considérer pour créer un espace indépendant en 2026. Vous pouvez retrouver tous les renseignements pour vous procurer cette petite maison préfabriquée Amazon personnalisable à moins de 12.000€ en cliquant sur ce lien !
Une mini-maison prête à installer pour créer rapidement un espace habitable
Vous cherchez une petite maison à installer dans votre jardin ou sur un terrain diffus? Cette mini-maison préfabriquée séduit par son prix pour le modèle de base. Il propose 37m2 habitables et totalement équipés. La structure en acier assure une bonne durabilité et une résistance fiable. Les matériaux choisis protègent efficacement des intempéries. La maison arrive prête à l’emploi dès la livraison. Son format pliable facilite le transport et le montage. Une fois déployée, elle comprend une cuisine équipée et une salle de bain fonctionnelle. Cette solution convient parfaitement pour une annexe indépendante, un bureau ou une maison d’amis.
Une solution modulable pour créer un espace indépendant sans engager de gros travaux
Cette mini-maison peut évoluer selon vos besoins et votre terrain. Elle est disponible en trois dimensions, jusqu’à 74m2. L’agencement intérieur reste personnalisable selon vos envies. Le plan intègre deux chambres, une cuisine ouverte et un salon bien proportionné. Les fenêtres et la porte vitrée apportent une belle luminosité naturelle. Des baies vitrées peuvent être ajoutées en option. L’isolation poussée améliore le confort thermique et acoustique.
Des options de personnalisation pour adapter la maison à votre terrain
Plusieurs options permettent d’adapter cette maison à votre projet. Un porche arrière ou un patio couvert peuvent être ajoutés. Le revêtement extérieur se décline en plusieurs couleurs, avec des finitions imitation bois possibles. Les sols et les peintures intérieures sont également personnalisables. Cette flexibilité rend chaque maison unique mais également en accord avec les règlementations locales.
Une maison préfabriquée accessible pour concrétiser un projet dès 2026
Livrée directement sur votre terrain, cette mini-maison combine rapidité d’installation et simplicité d’achat en ligne. Une solution pratique à considérer pour créer un espace indépendant en 2026. Vous pouvez retrouver tous les renseignements pour vous procurer cette petite maison préfabriquée Amazon personnalisable à moins de 12.000€ en cliquant sur ce lien !










Commentaires