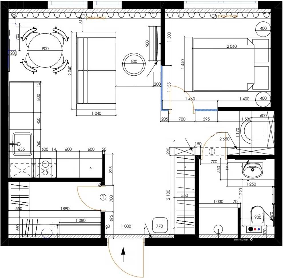
Petit appartement de 32m2 : agencement moderne, couleurs fortes et espaces ouverts
Dans ce petit appartement de 32m2 à la pièce de vie ouverte, on remarque les cloisons vitrées et une décoration aux couleurs marquées. L’architecte d’intérieur de Denish Design a imaginé un lieu optimisé, lumineux et rythmé par tons profonds, et parfaitement adapté à la vie quotidienne de sa propriétaire, une jeune femme. Aménager un logement comme celui-ci demande de la méthode. Ici, le plan privilégie un grand espace central réunissant la cuisine, le séjour, la salle à manger et le bureau. La circulation est fluide, les fonctions se répondent naturellement, et la lumière traverse l’ensemble sans obstacle visuel. La chambre est séparée grâce à des cloisons vitrées, qui préservent l’intimité tout en laissant deviner les rayons du jour. Le choix de couleurs intenses, associées au blanc et au bois clair, donne du relief et évite toute impression de monotonie.
La cuisine a adopté une implantation idéale en L, où les meubles hauts prennent place face à la fenêtre, libérant ainsi les perspectives. Un mur rouge chaleureux structure l’espace repas, et dialogue avec le grand miroir rond qui reflète la fenêtre. Dans la chambre, un bleu profond habille les murs et contraste avec la transparence des cloisons. Les rangements sur mesure, intégrés dès l’entrée, maximisent chaque recoin disponible. Même la salle de bain, compacte, réunit douche, lave-linge et rangements, avec un terrazzo graphique qui signe le décor. Photo : Katya Geits
In this small 32m2 flat with an open-plan living area, the glass partitions and bold colours stand out. The interior designer at Denish Design has created an optimised, bright space punctuated by deep tones, perfectly suited to the daily life of its owner, a young woman. Designing a home like this requires a methodical approach. Here, the layout favours a large central space combining the kitchen, living room, dining room and office. Flow is fluid, the functions complement each other naturally, and light floods through the space without any visual obstacles. Its bedroom is separated by glass partitions, which preserve privacy while allowing daylight to filter through. The choice of intense colours, combined with white and light wood, adds depth and avoids any impression of monotony.
The kitchen has an ideal L-shaped layout, with wall units facing the window, thus opening up the view. A warm red wall structures the dining area and interacts with the large round mirror that reflects the window. In the bedroom, deep blue walls contrast with the transparency of the partitions. The custom-made storage units, integrated into the entrance hall, maximise every available corner. Even the compact bathroom combines a shower, washing machine and storage space, with a graphic terrazzo floor that sets the tone for the décor. Photo: Katya Geits
Source : Jutarnji








La cuisine a adopté une implantation idéale en L, où les meubles hauts prennent place face à la fenêtre, libérant ainsi les perspectives. Un mur rouge chaleureux structure l’espace repas, et dialogue avec le grand miroir rond qui reflète la fenêtre. Dans la chambre, un bleu profond habille les murs et contraste avec la transparence des cloisons. Les rangements sur mesure, intégrés dès l’entrée, maximisent chaque recoin disponible. Même la salle de bain, compacte, réunit douche, lave-linge et rangements, avec un terrazzo graphique qui signe le décor. Photo : Katya Geits
Small 32m2 flat: modern layout, bold colours and open spaces
In this small 32m2 flat with an open-plan living area, the glass partitions and bold colours stand out. The interior designer at Denish Design has created an optimised, bright space punctuated by deep tones, perfectly suited to the daily life of its owner, a young woman. Designing a home like this requires a methodical approach. Here, the layout favours a large central space combining the kitchen, living room, dining room and office. Flow is fluid, the functions complement each other naturally, and light floods through the space without any visual obstacles. Its bedroom is separated by glass partitions, which preserve privacy while allowing daylight to filter through. The choice of intense colours, combined with white and light wood, adds depth and avoids any impression of monotony.
The kitchen has an ideal L-shaped layout, with wall units facing the window, thus opening up the view. A warm red wall structures the dining area and interacts with the large round mirror that reflects the window. In the bedroom, deep blue walls contrast with the transparency of the partitions. The custom-made storage units, integrated into the entrance hall, maximise every available corner. Even the compact bathroom combines a shower, washing machine and storage space, with a graphic terrazzo floor that sets the tone for the décor. Photo: Katya Geits
Source : Jutarnji
Shop the look !




Livres


























Commentaires