La rénovation d’une maison victorienne à Londres par des architectes réputés
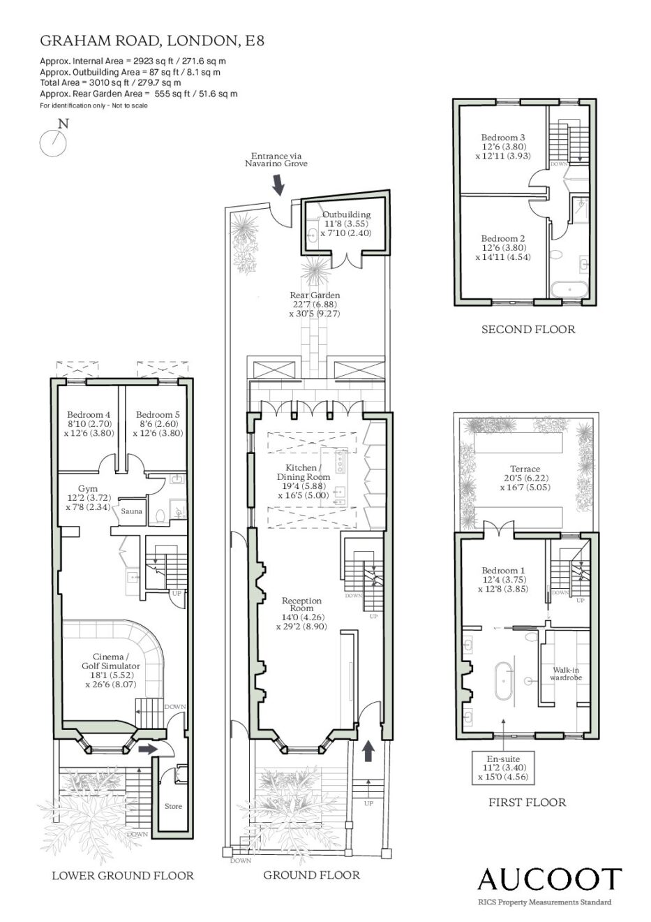
En bout de rangée à London Fields, cette maison victorienne rénovée à Londres a trouvé une nouvelle vie. Le projet réalisé par WPG Architects avec le studio Casa Botelho, a été mené de main de maître. Les briques désormais mises à nu sont associées à une palette minérale et boisée choisie avec soin. Le rez-de-chaussée surélevé accueille un espace de vie qui regroupe le salon, la salle à manger et la cuisine. Les cheminées en marbre restaurées sont de magnifiques témoignages de l'âge de la maison. Elles attirent naturellement le regard tout comme les luminaires signés John Cullen et Buster + Punch. Des lustres belges des années trente à la patine subtile se reflètent dans les miroirs d’Abigail Hearn.
La cuisine en gris béton sur mesure s’ouvre sur le jardin par trois portes vitrées monumentales. L’extérieur évoque une retraite zen avec son pavillon d’été, son barbecue et sa végétation dense. Les étages supérieurs accueillent trois chambres et deux salles de bain bien réparties. La suite principale est meublée avec un lit B&B Italia placé sous un lustre Timothy Oulton. La salle de bain attenante mêle la pierre Porcelanosa, les robinetteries Vola et ici encore, on y remarque une cheminée ancienne. Cette chambre possède également une terrasse privative.
At the end of a row in London Fields, this renovated Victorian house in London has found a new lease of life. The project, carried out by WPG Architects with the Casa Botelho studio, has been masterfully executed. Its exposed brickwork is combined with a carefully chosen palette of minerals and wood. The raised ground floor houses a living space that combines the lounge, dining room and kitchen. Its restored marble fireplaces are magnificent reminders of the age of the house. They naturally attract the eye, as do the light fixtures by John Cullen and Buster + Punch. Subtly patinated Belgian chandeliers from the 1930s are reflected in Abigail Hearn mirrors.
The bespoke concrete grey kitchen opens onto the garden through three monumental glass doors. The exterior evokes a Zen retreat with its summer pavilion, barbecue and dense vegetation. Its upper floors feature three well-distributed bedrooms and two bathrooms. The master suite is furnished with a B&B Italia bed under a Timothy Oulton chandelier. Its en-suite bathroom combines Porcelanosa stone and Vola taps, and here again, there is an antique fireplace. This bedroom also has a private terrace.
Cette maison victorienne rénovée à Londres est en vente chez AUCOOT




La cuisine en gris béton sur mesure s’ouvre sur le jardin par trois portes vitrées monumentales. L’extérieur évoque une retraite zen avec son pavillon d’été, son barbecue et sa végétation dense. Les étages supérieurs accueillent trois chambres et deux salles de bain bien réparties. La suite principale est meublée avec un lit B&B Italia placé sous un lustre Timothy Oulton. La salle de bain attenante mêle la pierre Porcelanosa, les robinetteries Vola et ici encore, on y remarque une cheminée ancienne. Cette chambre possède également une terrasse privative.
Renovation of a Victorian house in London by renowned architects
At the end of a row in London Fields, this renovated Victorian house in London has found a new lease of life. The project, carried out by WPG Architects with the Casa Botelho studio, has been masterfully executed. Its exposed brickwork is combined with a carefully chosen palette of minerals and wood. The raised ground floor houses a living space that combines the lounge, dining room and kitchen. Its restored marble fireplaces are magnificent reminders of the age of the house. They naturally attract the eye, as do the light fixtures by John Cullen and Buster + Punch. Subtly patinated Belgian chandeliers from the 1930s are reflected in Abigail Hearn mirrors.
The bespoke concrete grey kitchen opens onto the garden through three monumental glass doors. The exterior evokes a Zen retreat with its summer pavilion, barbecue and dense vegetation. Its upper floors feature three well-distributed bedrooms and two bathrooms. The master suite is furnished with a B&B Italia bed under a Timothy Oulton chandelier. Its en-suite bathroom combines Porcelanosa stone and Vola taps, and here again, there is an antique fireplace. This bedroom also has a private terrace.
Cette maison victorienne rénovée à Londres est en vente chez AUCOOT
Livres



























Commentaires