Tiny house française Auréa, un habitat modulaire de 20m2 à 40m2
Le constructeur My Tiny Lodge imagine des habitats modulaires pensés pour répondre aux envies actuelles de liberté résidentielle. Il développe des tiny houses, studios de jardin et pool houses adaptés à nos envies actuelles. Il est à noter que les modèles ne sont pas vraiment des petites maisons mobiles mais sont plutôt destinés à être installés sur leur propre terrain. Chaque construction vise un impact carbone réduit grâce à des choix techniques cohérents et durables. Ici, la maison devient un projet rapide à mettre en oeuvre, et plus accessible financièrement. Face aux constructions traditionnelles longues et coûteuses, l’approche tranche clairement. Le concept de la tiny house française Auréa séduit celles et ceux qui souhaitent habiter autrement, sans renoncer au confort.
Chez My Tiny Lodge, chaque habitat est conçu pour s’adapter au terrain et au budget. La construction modulaire permet une mise en œuvre rapide, avec des délais bien plus courts. L’objectif reste clair, proposer des logements bien isolés, fonctionnels et compatibles avec les normes actuelles. Les matériaux sont choisis pour leur résistance et leur performance thermique. Cette logique permet de réduire les besoins énergétiques tout au long de l’année. Le résultat offre un cadre de vie simple, pratique et cohérent avec des valeurs responsables.
My Tiny Lodge propose trois modèles Auréa, déclinés de 20 à 40m2 habitables. Chaque version présente des volumes bien exploités.
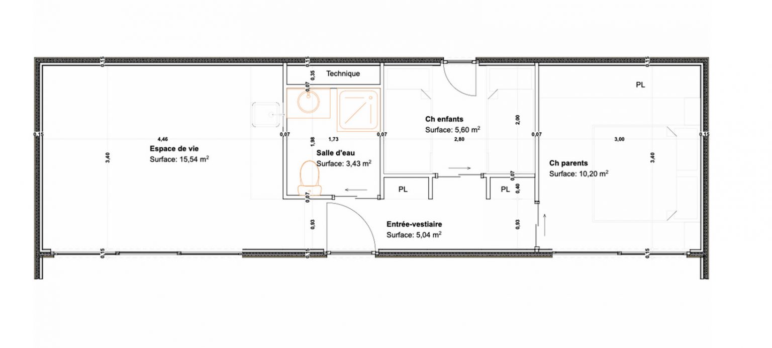
Auréa 40m2
Le modèle Auréa 40m2 convient pour accueillir confortablement jusqu’à quatre personnes. Il comprend deux chambres modulables, plusieurs configurations de couchages et un canapé-lit. Sa surface de 40m2 repose sur un format plain-pied de 12,5 mètres par 3,2 mètres.
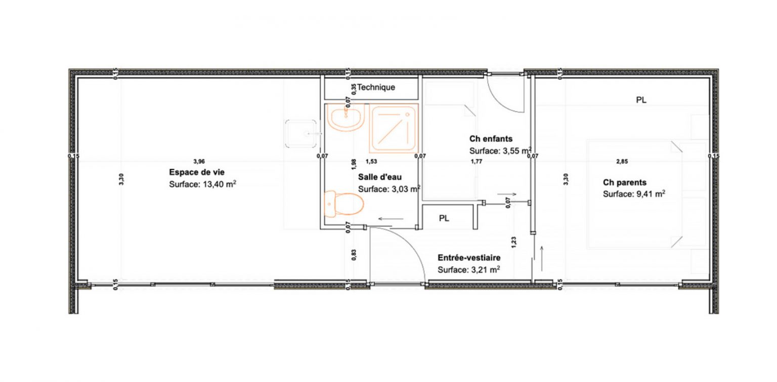
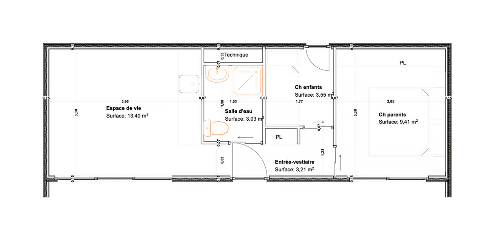
Auréa 30m2
La tiny house française Auréa 30m2 s’adresse aux foyers de trois personnes recherchant un habitat compact. Deux chambres permettent différentes combinaisons de lits, avec un canapé-lit en complément. Ses dimensions atteignent 10 mètres par 3 mètres, toujours en plain-pied.
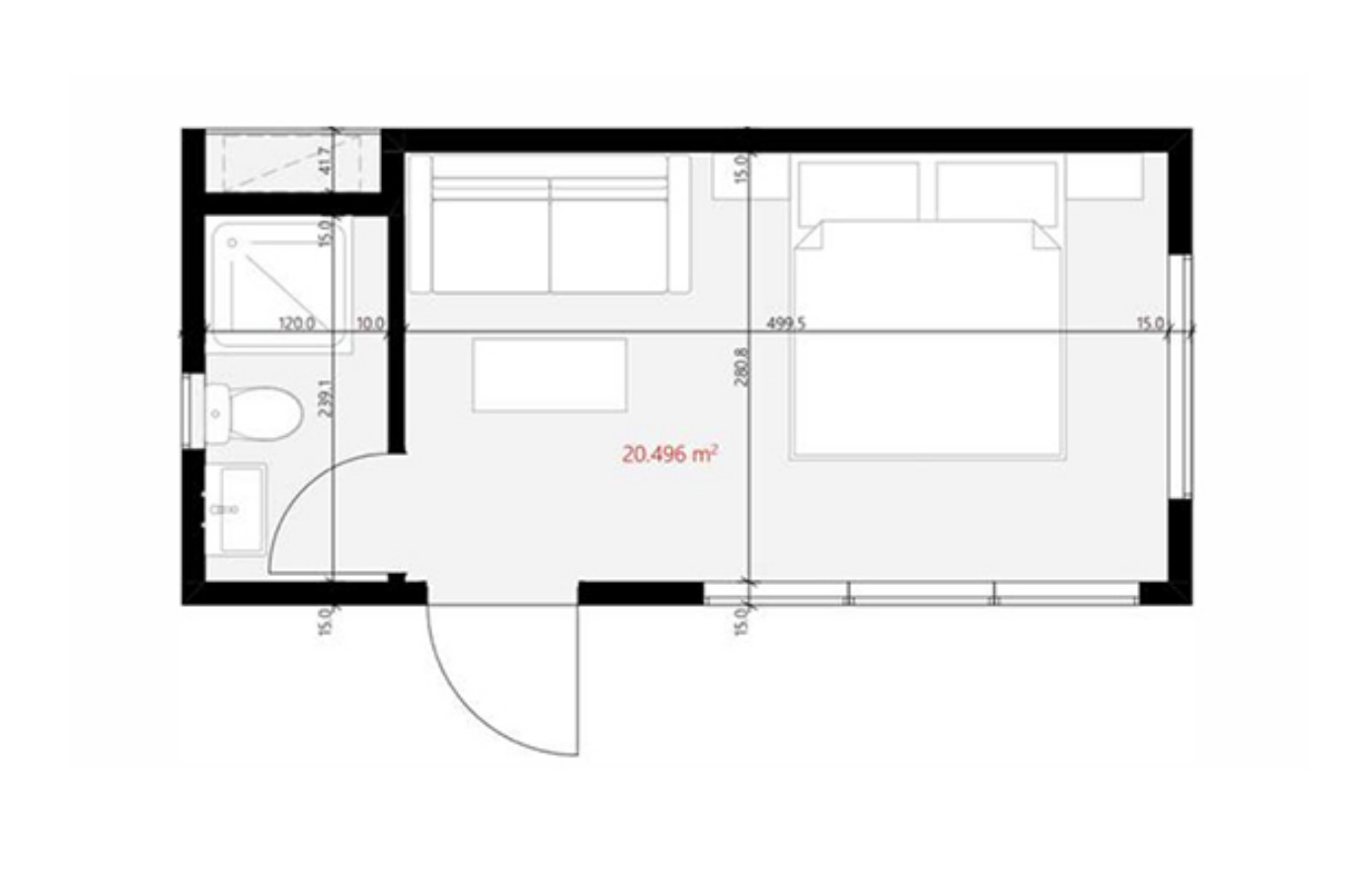
Auréa 20m2
Le modèle Auréa 20m2 se distingue par une installation sans permis de construire avec une simple déclaration de travaux. Il accueille deux à trois personnes avec un lit double et un canapé-lit. Sa structure mesure 6,5 mètres par 3 mètres.
Les trois modèles reposent sur une ossature acier galvanisé légère et résistante. L’isolation utilise des panneaux sandwich de 100 millimètres conformes aux normes RE2020. Les menuiseries double vitrage, les sanitaires complets et la cuisine meublée sont inclus. Une pompe à chaleur assure chauffage et climatisation réversible. Les finitions intérieures et extérieures restent personnalisables selon les envies. Des options permettent d’ajouter terrasse, solutions solaires ou aménagements intérieurs spécifiques. Ces trois modèles peuvent convenir aussi bien à des particuliers, qu'à des professionnels du loisir. Pour retrouver tous les modèles de cette tiny house française Auréa et les prix, cliquez sur ce lien !
Une vision modulaire et responsable
Chez My Tiny Lodge, chaque habitat est conçu pour s’adapter au terrain et au budget. La construction modulaire permet une mise en œuvre rapide, avec des délais bien plus courts. L’objectif reste clair, proposer des logements bien isolés, fonctionnels et compatibles avec les normes actuelles. Les matériaux sont choisis pour leur résistance et leur performance thermique. Cette logique permet de réduire les besoins énergétiques tout au long de l’année. Le résultat offre un cadre de vie simple, pratique et cohérent avec des valeurs responsables.
La gamme Auréa, trois surfaces bien pensées
My Tiny Lodge propose trois modèles Auréa, déclinés de 20 à 40m2 habitables. Chaque version présente des volumes bien exploités.
Auréa 40m2
Le modèle Auréa 40m2 convient pour accueillir confortablement jusqu’à quatre personnes. Il comprend deux chambres modulables, plusieurs configurations de couchages et un canapé-lit. Sa surface de 40m2 repose sur un format plain-pied de 12,5 mètres par 3,2 mètres.
Auréa 30m2
La tiny house française Auréa 30m2 s’adresse aux foyers de trois personnes recherchant un habitat compact. Deux chambres permettent différentes combinaisons de lits, avec un canapé-lit en complément. Ses dimensions atteignent 10 mètres par 3 mètres, toujours en plain-pied.
Auréa 20m2
Le modèle Auréa 20m2 se distingue par une installation sans permis de construire avec une simple déclaration de travaux. Il accueille deux à trois personnes avec un lit double et un canapé-lit. Sa structure mesure 6,5 mètres par 3 mètres.
Des équipements complets et évolutifs
Les trois modèles reposent sur une ossature acier galvanisé légère et résistante. L’isolation utilise des panneaux sandwich de 100 millimètres conformes aux normes RE2020. Les menuiseries double vitrage, les sanitaires complets et la cuisine meublée sont inclus. Une pompe à chaleur assure chauffage et climatisation réversible. Les finitions intérieures et extérieures restent personnalisables selon les envies. Des options permettent d’ajouter terrasse, solutions solaires ou aménagements intérieurs spécifiques. Ces trois modèles peuvent convenir aussi bien à des particuliers, qu'à des professionnels du loisir. Pour retrouver tous les modèles de cette tiny house française Auréa et les prix, cliquez sur ce lien !












Commentaires