La petite maison modulaire de 56m2 qui fait oublier les grandes !
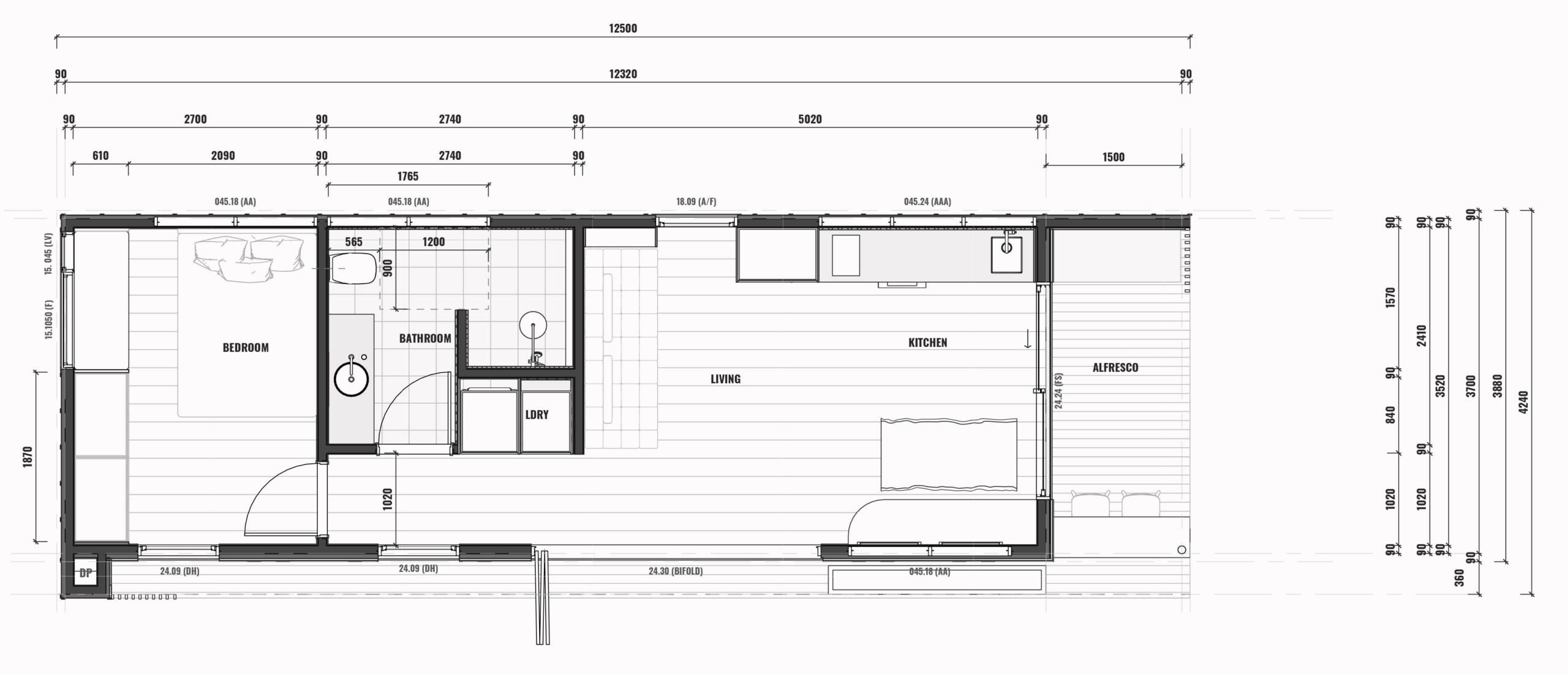
La petite maison modulaire de 56m2 Whitsunday par Arcopod prouve qu’un petit format peut offrir un vrai confort et un design recherché. Elle affiche une silhouette blanche aux lignes nettes et actuelles. Sa terrasse intégrée offre un espace extérieur protégé et agréable. Les baies vitrées coulissantes prolongent le salon vers l’extérieur et laissent entrer la lumière naturelle. Le toit débordant protège la terrasse et permet de profiter de la vue même par temps changeant. Avec ses 4,5 mètres de large sur 12,5 mètres de long, ce modèle de 56m2 offre une alternative crédible à la maison classique. Pensée par Arcopod, spécialiste du modulaire, elle vise les couples ou les personnes seules en quête d’un espace bien organisé.
À l’intérieur, le blanc domine et met en valeur le plafond bois et le parquet clair. La pièce de vie rassemble le salon et la salle à manger dans un espace ouvert agréable. La cuisine, compacte mais complète, propose des rangements toute hauteur et des appareils intégrés. La chambre profite d’une banquette sous la fenêtre, idéale pour lire ou travailler au calme. De petites ouvertures en hauteur apportent lumière et ventilation naturelle. La salle de bain joue la carte des tons doux, avec un plan vasque graphique et un éclairage soigné. Construite hors site puis installée à la grue, cette maison modulaire répond aux normes locales. Elle montre qu’un format réduit peut offrir confort, style et vraie qualité de vie. Pour découvrir cette petite maison modulaire de 56m2 sur YouTube cliquez sur ce lien ! Et pour tout savoir sur ses caractéristiques techniques, cliquez sur ce lien !
The small 56m2 Whitsunday modular house by Arcopod proves that a small format can offer real comfort and sophisticated design. It features a white silhouette with clean, contemporary lines. Its integrated terrace provides a pleasant, sheltered outdoor space. Sliding glass doors extend the living room outwards and let in natural light. The overhanging roof protects the terrace and allows you to enjoy the view even in changeable weather. Measuring 4.5 metres wide by 12.5 metres long, this 56m2 model offers a credible alternative to the classic house. Designed by Arcopod, a modular specialist, it is aimed at couples or single people looking for a well-organised space.
Inside, white dominates, highlighting the wooden ceiling and light-coloured parquet flooring. The living area combines the lounge and dining room in a pleasant open space. Its compact but fully equipped kitchen offers full-height storage and built-in appliances. The bedroom has a bench under the window, ideal for reading or working in peace. Small openings at the top provide natural light and ventilation. The bathroom features soft tones, with a graphic washbasin and careful lighting. Built off-site and then installed by crane, this modular house meets local standards. It shows that a small format can offer comfort, style and a real quality of life. To discover this small 56m2 modular house on YouTube, click on this link! And to find out all about its technical features, click on this link!








À l’intérieur, le blanc domine et met en valeur le plafond bois et le parquet clair. La pièce de vie rassemble le salon et la salle à manger dans un espace ouvert agréable. La cuisine, compacte mais complète, propose des rangements toute hauteur et des appareils intégrés. La chambre profite d’une banquette sous la fenêtre, idéale pour lire ou travailler au calme. De petites ouvertures en hauteur apportent lumière et ventilation naturelle. La salle de bain joue la carte des tons doux, avec un plan vasque graphique et un éclairage soigné. Construite hors site puis installée à la grue, cette maison modulaire répond aux normes locales. Elle montre qu’un format réduit peut offrir confort, style et vraie qualité de vie. Pour découvrir cette petite maison modulaire de 56m2 sur YouTube cliquez sur ce lien ! Et pour tout savoir sur ses caractéristiques techniques, cliquez sur ce lien !
The small 56m2 modular house that makes you forget about larger ones!
The small 56m2 Whitsunday modular house by Arcopod proves that a small format can offer real comfort and sophisticated design. It features a white silhouette with clean, contemporary lines. Its integrated terrace provides a pleasant, sheltered outdoor space. Sliding glass doors extend the living room outwards and let in natural light. The overhanging roof protects the terrace and allows you to enjoy the view even in changeable weather. Measuring 4.5 metres wide by 12.5 metres long, this 56m2 model offers a credible alternative to the classic house. Designed by Arcopod, a modular specialist, it is aimed at couples or single people looking for a well-organised space.
Inside, white dominates, highlighting the wooden ceiling and light-coloured parquet flooring. The living area combines the lounge and dining room in a pleasant open space. Its compact but fully equipped kitchen offers full-height storage and built-in appliances. The bedroom has a bench under the window, ideal for reading or working in peace. Small openings at the top provide natural light and ventilation. The bathroom features soft tones, with a graphic washbasin and careful lighting. Built off-site and then installed by crane, this modular house meets local standards. It shows that a small format can offer comfort, style and a real quality of life. To discover this small 56m2 modular house on YouTube, click on this link! And to find out all about its technical features, click on this link!
Shop the look !




Livres






















Commentaires