Un petit appartement de 50m2 au style vintage et parisien
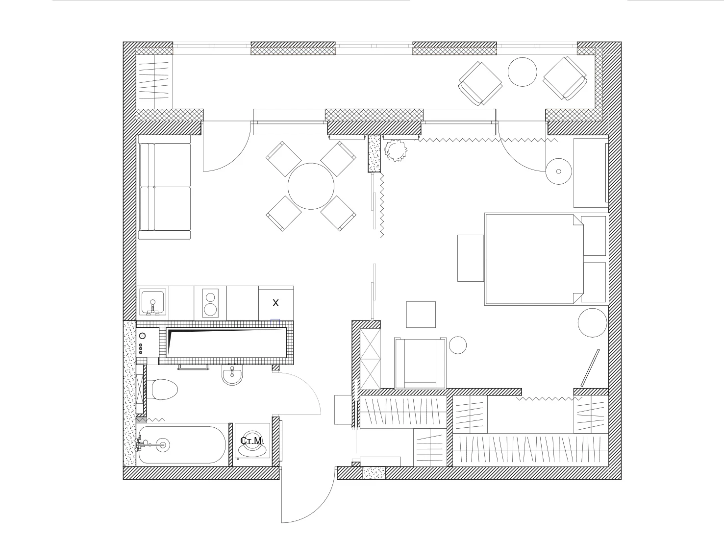
Dans ce petit appartement de 50m2, les meubles vintage et les lignes classiques dialoguent pour composer un intérieur élégant et lumineux. La designer Sabina Valieva a imaginé cet appartement pour une jeune femme amatrice de voyages. La cliente souhaitait une ambiance parisienne, où pièces anciennes et lignes élégantes se répondent naturellement. L’espace est certes petit mais bénéficie d’une hauteur sous plafond généreuse de trois mètres, qui renforce la sensation de volume. Deux ouvertures mènent vers une loggia vitrée panoramique, véritable extension lumineuse de l’espace intérieur.
Dans cette petite surface, chaque fonction essentielle a trouvé sa place naturelle. La cuisine et le salon partagent un volume aéré, propice aux moments quotidiens comme aux réceptions. La chambre est séparée par des portes verrières blanches. Ainsi, la sensation d'espace est préservée tout en permettant de s'isoler avec des rideaux épais si nécessaire. Une charmante petit coiffeuse et sa chaise originale au dossier brodé complètent l’aménagement de cette pièce. Les murs peints en vert pistache dans ce petit appartement de 50m2 contrastent avec le mobilier. Des touches de bleu vif, un fauteuil rouge et des accessoires noirs dynamisent l’ensemble. Le dialogue entre meubles vintage et créations actuelles est tout en équilibre. Photo : Sergey Krasyuk
In this small 50m2 apartment, vintage furniture and classic lines come together to create an elegant and bright interior. Designer Sabina Valieva designed this apartment for a young woman who loves to travel. The client wanted a Parisian atmosphere, where antique pieces and elegant lines complement each other naturally. The space is certainly small, but it benefits from a generous ceiling height of three metres, which enhances the feeling of volume. Two openings lead to a panoramic glass loggia, a bright extension of the interior space.
In this small space, each essential function has found its natural place. The kitchen and living room share an airy space, ideal for everyday moments and entertaining. The bedroom is separated by white glass doors. This preserves the feeling of space while allowing for privacy with thick curtains if necessary. A charming little vanity table and its original chair with an embroidered backrest complete the layout of this room. The pistachio green walls in this small 50m2 flat contrast with the furniture. Touches of bright blue, a red armchair and black accessories add energy to the whole. The dialogue between vintage furniture and contemporary designs is perfectly balanced. Photo: Sergey Krasyuk








Dans cette petite surface, chaque fonction essentielle a trouvé sa place naturelle. La cuisine et le salon partagent un volume aéré, propice aux moments quotidiens comme aux réceptions. La chambre est séparée par des portes verrières blanches. Ainsi, la sensation d'espace est préservée tout en permettant de s'isoler avec des rideaux épais si nécessaire. Une charmante petit coiffeuse et sa chaise originale au dossier brodé complètent l’aménagement de cette pièce. Les murs peints en vert pistache dans ce petit appartement de 50m2 contrastent avec le mobilier. Des touches de bleu vif, un fauteuil rouge et des accessoires noirs dynamisent l’ensemble. Le dialogue entre meubles vintage et créations actuelles est tout en équilibre. Photo : Sergey Krasyuk
A small 50m2 apartment with a vintage Parisian style
In this small 50m2 apartment, vintage furniture and classic lines come together to create an elegant and bright interior. Designer Sabina Valieva designed this apartment for a young woman who loves to travel. The client wanted a Parisian atmosphere, where antique pieces and elegant lines complement each other naturally. The space is certainly small, but it benefits from a generous ceiling height of three metres, which enhances the feeling of volume. Two openings lead to a panoramic glass loggia, a bright extension of the interior space.
In this small space, each essential function has found its natural place. The kitchen and living room share an airy space, ideal for everyday moments and entertaining. The bedroom is separated by white glass doors. This preserves the feeling of space while allowing for privacy with thick curtains if necessary. A charming little vanity table and its original chair with an embroidered backrest complete the layout of this room. The pistachio green walls in this small 50m2 flat contrast with the furniture. Touches of bright blue, a red armchair and black accessories add energy to the whole. The dialogue between vintage furniture and contemporary designs is perfectly balanced. Photo: Sergey Krasyuk
Shop the look !




Livres


























Commentaires