La rénovation d’un appartement du 18e siècle au cœur de Lisbonne
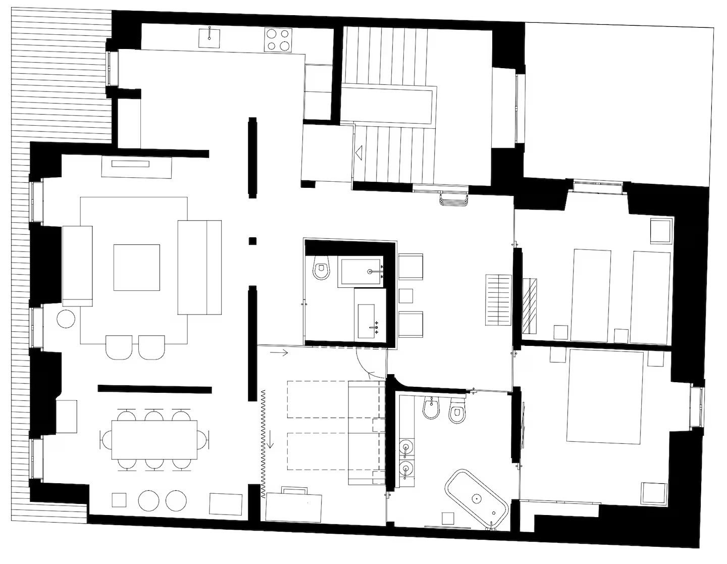
Au cœur de Lisbonne, la rénovation d’un appartement du 18e siècle respecte son patrimoine. Les interventions contemporaines ont été soigneusement pensées par le studio CASCA. Situé au dernier étage d’un immeuble, cet appartement de 130m2 domine le centre du Lisbonne historique. La rénovation respecte le style pombalin tout en intégrant des usages contemporains adaptés à la vie actuelle. Les designers ont abordé la rénovation comme une greffe architecturale précise et réfléchie. Les hauts plafonds en bois, les carreaux anciens et les murs en calcaire structurent l’espace.
Les meubles dessinés sur mesure s'accordent avec la charpente apparente. Le contreplaqué de pin local et le liège apportent de la douceur. L’ensemble donne un intérieur ancré dans son époque. Les volumes sous toiture mettent en valeur les poutres apparentes conservées. Les portes en bois d’origine rappellent également l'âge de l'appartement. L’espace de vie fonctionne comme une galerie habitée, rythmée par l’art et l’éclairage. Les fenêtres en hauteur ouvrent des vues circulaires sur les toits de Baixa-Chiado et Castelo.
In the heart of Lisbon, the renovation of an 18th-century flat respects its heritage. The contemporary interventions were carefully designed by the CASCA studio. Located on the top floor of a building, this 130m2 flat overlooks the centre of historic Lisbon. The renovation respects the Pombaline style while incorporating contemporary features adapted to modern life. The designers approached the renovation as a precise and thoughtful architectural graft. High wooden ceilings, antique tiles and limestone walls structure the space.
The custom-designed furniture matches the exposed framework. Local pine plywood and cork add softness. The result is an interior rooted in its era. Its volumes under the roof highlight the preserved exposed beams. The original wooden doors also recall the age of the flat. Its living space functions as a lived-in gallery, punctuated by art and lighting. The high windows offer circular views over the rooftops of Baixa-Chiado and Castelo.
Cet appartement à Lisbonne est à louer par l'entremise de Airbnb
This apartment in Lisbon is available to rent through Airbnb








Les meubles dessinés sur mesure s'accordent avec la charpente apparente. Le contreplaqué de pin local et le liège apportent de la douceur. L’ensemble donne un intérieur ancré dans son époque. Les volumes sous toiture mettent en valeur les poutres apparentes conservées. Les portes en bois d’origine rappellent également l'âge de l'appartement. L’espace de vie fonctionne comme une galerie habitée, rythmée par l’art et l’éclairage. Les fenêtres en hauteur ouvrent des vues circulaires sur les toits de Baixa-Chiado et Castelo.
Renovation of an 18th-century flat in the heart of Lisbon
In the heart of Lisbon, the renovation of an 18th-century flat respects its heritage. The contemporary interventions were carefully designed by the CASCA studio. Located on the top floor of a building, this 130m2 flat overlooks the centre of historic Lisbon. The renovation respects the Pombaline style while incorporating contemporary features adapted to modern life. The designers approached the renovation as a precise and thoughtful architectural graft. High wooden ceilings, antique tiles and limestone walls structure the space.
The custom-designed furniture matches the exposed framework. Local pine plywood and cork add softness. The result is an interior rooted in its era. Its volumes under the roof highlight the preserved exposed beams. The original wooden doors also recall the age of the flat. Its living space functions as a lived-in gallery, punctuated by art and lighting. The high windows offer circular views over the rooftops of Baixa-Chiado and Castelo.
Cet appartement à Lisbonne est à louer par l'entremise de Airbnb
This apartment in Lisbon is available to rent through Airbnb
Shop the look !




Livres



























Commentaires