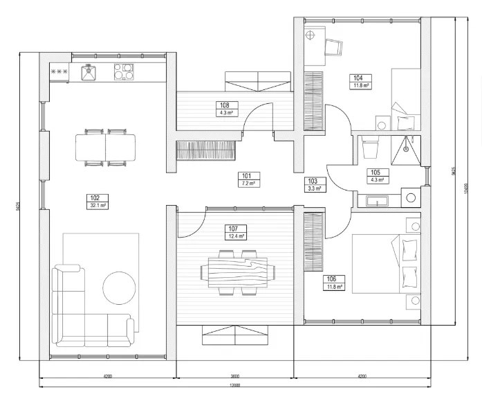
Une maison de 88m2 préfabriquée en bois livrable en France à un prix très abordable
La maison Helsinki de Ilumhouse pourrait bien vous donner envie de faire construire la vôtre. Cette maison de 88m2 préfabriquée en bois fait partie des créations récentes de cette entreprise basée en Lettonie. Elle livre partout en Europe et a déjà construit plusieurs centaines de maisons. Forte de son expérience dans les maisons à ossature bois performantes sur le plan énergétique, l’entreprise renouvelle régulièrement ses propositions. D’abord orientée vers les mini-maisons, elle conçoit désormais des maisons de tailles et de styles variés. Le modèle présenté séduit par ses lignes actuelles et par ses larges baies vitrées ouvertes sur l’extérieur.
L’entreprise maîtrise l’ensemble de la production grâce à son propre site industriel. Ses équipes suivent chaque étape, de la conception de la structure aux finitions intérieures. En plus des maisons clés en main, Ilumhouse propose des maisons en panneaux préfabriqués à assembler sur le terrain. Cette solution permet une réelle adaptation à chaque projet de logement. Chaque maison en bois fait l’objet d’une étude esthétique précise et cohérente. Les murs sont peints, les sols installés et les plafonds finalisés. Les réseaux électriques et de plomberie sont posés, tout comme les portes et les fenêtres. Pour retrouver cette maison de 88m2 préfabriquée en bois livrable en France, ses caractéristiques, ses options et son prix, cliquez sur ce lien !
Ilumhouse's Helsinki house may well inspire you to build your own. This 88m2 prefabricated wooden house is one of the latest creations from this Latvia-based company. It delivers throughout Europe and has already built several hundred houses. With its wealth of experience in energy-efficient timber frame houses, the company regularly updates its range. Initially focused on mini-houses, it now designs houses of various sizes and styles. The model shown here is appealing with its contemporary lines and large windows opening onto the outside.
The company controls the entire production process thanks to its own industrial site. Its teams oversee every stage, from the design of the structure to the interior finishes. In addition to turnkey houses, Ilumhouse offers prefabricated panel houses that can be assembled on site. This solution allows for real adaptation to each housing project. Each wooden house is the subject of a precise and consistent aesthetic study. The walls are painted, the floors installed and the ceilings finished. The electrical and plumbing systems are installed, as are the doors and windows. To find out more about this 88m2 prefabricated wooden house available in France, its features, options and price, click on this link!




L’entreprise maîtrise l’ensemble de la production grâce à son propre site industriel. Ses équipes suivent chaque étape, de la conception de la structure aux finitions intérieures. En plus des maisons clés en main, Ilumhouse propose des maisons en panneaux préfabriqués à assembler sur le terrain. Cette solution permet une réelle adaptation à chaque projet de logement. Chaque maison en bois fait l’objet d’une étude esthétique précise et cohérente. Les murs sont peints, les sols installés et les plafonds finalisés. Les réseaux électriques et de plomberie sont posés, tout comme les portes et les fenêtres. Pour retrouver cette maison de 88m2 préfabriquée en bois livrable en France, ses caractéristiques, ses options et son prix, cliquez sur ce lien !
An 88m2 prefabricated wooden house available in France at a very affordable price
Ilumhouse's Helsinki house may well inspire you to build your own. This 88m2 prefabricated wooden house is one of the latest creations from this Latvia-based company. It delivers throughout Europe and has already built several hundred houses. With its wealth of experience in energy-efficient timber frame houses, the company regularly updates its range. Initially focused on mini-houses, it now designs houses of various sizes and styles. The model shown here is appealing with its contemporary lines and large windows opening onto the outside.
The company controls the entire production process thanks to its own industrial site. Its teams oversee every stage, from the design of the structure to the interior finishes. In addition to turnkey houses, Ilumhouse offers prefabricated panel houses that can be assembled on site. This solution allows for real adaptation to each housing project. Each wooden house is the subject of a precise and consistent aesthetic study. The walls are painted, the floors installed and the ceilings finished. The electrical and plumbing systems are installed, as are the doors and windows. To find out more about this 88m2 prefabricated wooden house available in France, its features, options and price, click on this link!
Livres

















Commentaires