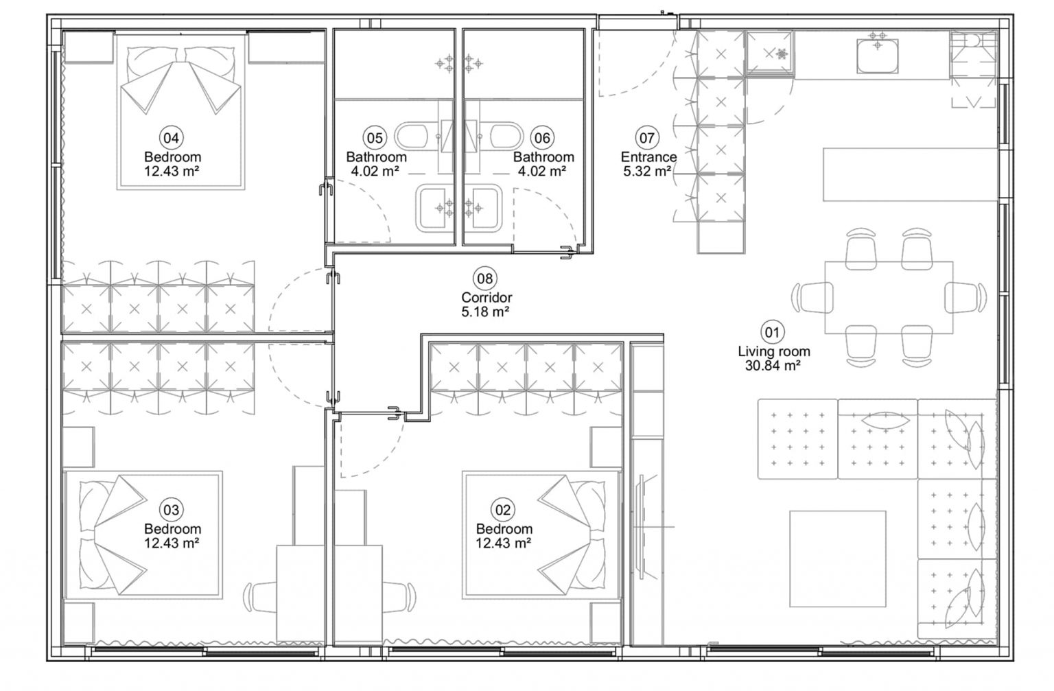
Une maison préfabriquée de 96m2 clé en main au luxe accessible
Le luxe ne rime plus forcément avec budget démesuré aujourd’hui. Cette maison préfabriquée de 96m2 prouve qu’un design moderne peut rester accessible. Ce modèle Trio est fabriquée en Bulgarie par We Modular et commercialisé en France par Spassio. Trois chambres et deux salles de bain sont prévues dans cette surface pensée pour la vie de famille. La ligne extérieure joue la carte du minimalisme avec un volume simple et élégant. Les larges baies vitrées ouvrent l’espace sur le jardin et la terrasse. La lumière naturelle devient ici un véritable plaisir quotidien.
À l’intérieur, le bois clair réchauffe l’ambiance avec sobriété et équilibre. La cuisine équipée est incluse dans le prix. Le système de chauffage, le refroidissement et la ventilation assurent un confort constant. Le triple vitrage renforce l’isolation thermique et acoustique du logement. Cette maison modulaire propose ainsi une solution clé en main cohérente. Elle illustre parfaitement le potentiel des constructions préfabriquées actuelles. Le modèle Trio montre que le design peut rester accessible et bien pensé. Pour découvrir tous les détails de cette maison préfabriquée de 96m2 ainsi que son prix, cliquez sur ce lien.
Luxury no longer necessarily means an exorbitant budget. This 96m2 prefabricated house proves that modern design can remain affordable. The Trio model is manufactured in Bulgaria by We Modular and marketed in France by Spassio. Three bedrooms and two bathrooms are provided in this space designed for family life. The exterior design is minimalist, with a simple and elegant volume. Large bay windows open up the space onto the garden and terrace. Natural light becomes a real daily pleasure here.
Inside, light wood warms the atmosphere with sobriety and balance. The fitted kitchen is included in the price. The heating, cooling and ventilation systems ensure constant comfort. Triple glazing enhances the thermal and acoustic insulation of the home. This modular house offers a coherent turnkey solution. It perfectly illustrates the potential of today's prefabricated buildings. The Trio model shows that design can remain accessible and well thought out. To discover all the details of this 96m2 prefabricated house and its price, click on this link.




À l’intérieur, le bois clair réchauffe l’ambiance avec sobriété et équilibre. La cuisine équipée est incluse dans le prix. Le système de chauffage, le refroidissement et la ventilation assurent un confort constant. Le triple vitrage renforce l’isolation thermique et acoustique du logement. Cette maison modulaire propose ainsi une solution clé en main cohérente. Elle illustre parfaitement le potentiel des constructions préfabriquées actuelles. Le modèle Trio montre que le design peut rester accessible et bien pensé. Pour découvrir tous les détails de cette maison préfabriquée de 96m2 ainsi que son prix, cliquez sur ce lien.
A 96m2 ready-to-move-in prefabricated house offering affordable luxury
Luxury no longer necessarily means an exorbitant budget. This 96m2 prefabricated house proves that modern design can remain affordable. The Trio model is manufactured in Bulgaria by We Modular and marketed in France by Spassio. Three bedrooms and two bathrooms are provided in this space designed for family life. The exterior design is minimalist, with a simple and elegant volume. Large bay windows open up the space onto the garden and terrace. Natural light becomes a real daily pleasure here.
Inside, light wood warms the atmosphere with sobriety and balance. The fitted kitchen is included in the price. The heating, cooling and ventilation systems ensure constant comfort. Triple glazing enhances the thermal and acoustic insulation of the home. This modular house offers a coherent turnkey solution. It perfectly illustrates the potential of today's prefabricated buildings. The Trio model shows that design can remain accessible and well thought out. To discover all the details of this 96m2 prefabricated house and its price, click on this link.
Livres


















Commentaires