Un petit appartement de 54m2 optimisé pour une famille de quatre personnes
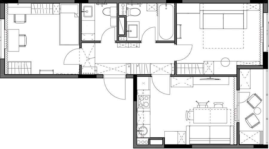
Sur une surface limitée, cette famille de quatre relève le défi du quotidien grâce à une organisation millimétrée et des rangements invisibles. Dans cet petit appartement de 54m2 optimisé, la priorité était claire dès le départ. Il fallait loger une famille sportive, active, et très organisée. La cuisine, pensée comme cœur social, associe façades bleu doux et sable. Les colonnes intègrent four et appareils, tandis qu’un linéaire permet d'avoir une surface de préparation pratique. La table collée au canapé remplace le duo salle à manger et salon. Dans la chambre parentale, un lit armoire escamotable libère le sol pour le sport. Les rangements entourent le bureau et se fondent dans le décor.
La chambre des enfants accueille un lit superposé et des armoires murales. La salle de bain combine carrelage graphique et meubles bois chaleureux. La designer Irina Sobylenskaya chargée du projet a transformé chaque mur en allié discret. Le plan initial proposait un séjour avec cuisine ouverte, deux chambres et deux salles d’eau. Les blocs sanitaires étant figés, l’astuce s’est jouée dans le couloir. Une partie a été récupérée pour agrandir la seconde salle d’eau. Résultat, une vraie buanderie s’est glissée dans le volume existant. Le couloir concentre aussi la plus grande capacité de rangement. Les meubles peints comme les murs montent jusqu’au plafond.
With limited space, this family of four meets the challenges of everyday life thanks to meticulous organisation and hidden storage. In this small, optimised 54m2 flat, the priority was clear from the outset. It had to accommodate a sporty, active and highly organised family. The kitchen, designed as the social hub, combines soft blue and sand-coloured cabinet fronts. The tall units house the oven and appliances, while a linear unit provides a practical preparation surface. A table next to the sofa replaces the dining room and living room. In the master bedroom, a Murphy bed frees up floor space for sports. Storage surrounds the desk and blends into the decor.
The children's bedroom has a bunk bed and wall-mounted wardrobes. The bathroom combines graphic tiles with warm wooden furniture. Designer Irina Sobylenskaya, who was in charge of the project, transformed each wall into a discreet ally. The initial plan proposed a living room with an open kitchen, two bedrooms and two bathrooms. As the sanitary facilities were fixed, the trick was played out in the hallway. Part of it was reclaimed to enlarge the second shower room. As a result, a real laundry room was squeezed into the existing space. The hallway also has the most storage capacity. The furniture, painted like the walls, extends to the ceiling.
Source : Lakbermagazin








La chambre des enfants accueille un lit superposé et des armoires murales. La salle de bain combine carrelage graphique et meubles bois chaleureux. La designer Irina Sobylenskaya chargée du projet a transformé chaque mur en allié discret. Le plan initial proposait un séjour avec cuisine ouverte, deux chambres et deux salles d’eau. Les blocs sanitaires étant figés, l’astuce s’est jouée dans le couloir. Une partie a été récupérée pour agrandir la seconde salle d’eau. Résultat, une vraie buanderie s’est glissée dans le volume existant. Le couloir concentre aussi la plus grande capacité de rangement. Les meubles peints comme les murs montent jusqu’au plafond.
A small 54m2 flat optimised for a family of four
With limited space, this family of four meets the challenges of everyday life thanks to meticulous organisation and hidden storage. In this small, optimised 54m2 flat, the priority was clear from the outset. It had to accommodate a sporty, active and highly organised family. The kitchen, designed as the social hub, combines soft blue and sand-coloured cabinet fronts. The tall units house the oven and appliances, while a linear unit provides a practical preparation surface. A table next to the sofa replaces the dining room and living room. In the master bedroom, a Murphy bed frees up floor space for sports. Storage surrounds the desk and blends into the decor.
The children's bedroom has a bunk bed and wall-mounted wardrobes. The bathroom combines graphic tiles with warm wooden furniture. Designer Irina Sobylenskaya, who was in charge of the project, transformed each wall into a discreet ally. The initial plan proposed a living room with an open kitchen, two bedrooms and two bathrooms. As the sanitary facilities were fixed, the trick was played out in the hallway. Part of it was reclaimed to enlarge the second shower room. As a result, a real laundry room was squeezed into the existing space. The hallway also has the most storage capacity. The furniture, painted like the walls, extends to the ceiling.
Source : Lakbermagazin
Shop the look !




Livres



































Commentaires